KF ၃ ခုပါ ဘောလုံးဗာဗွန်း KF/NW ဗကူးချ်ဘောလုံးဗာဗွန်း SS304 SS316L ဘက်နှစ်ဘက်လုံးဖလိန်ဂျ် KF16-KF50 ဆီမီဗွန်းဒတ်ချ် လက်တွေ့ ၂ လမ်း ဖြောင့် ပန်ကာမော်တာဗာဗွန်း NW16-NW50
စတိန်းလက်သံမဏ့ဲ KF စက္ကူဖိအား လက်ဖြင့်ထိန်းချုပ်သော ၃-အစိတ်အပိုင်း ဘောလုံးပိတ်တံခါး KF16/25/40/50 SS304 SS316L စက္ကူဖိအား သုံးအစိတ်အပိုင်း ဘောလုံးပိတ်တံခါး ဆီမီဗာကွန်ဒပ်က်တာအတွက်
- အကြ overview
- အကြံပေးထားသော ထုတ်ကုန်များ

ဗက်ချူအမ် ဘောလ်ဗီဗွန်များသည် ဟန်ဒယ်ကို ၉၀ ဒီဂရီ လှည့်လိုက်ခြင်းဖြင့် အပြည့်အ၀ ပိတ်ခြင်း သို့မဟုတ် ဖွင့်ခြင်းကို လုပ်ဆောင်နိုင်ခြင်း၊ ဓာတ်ငွေ့ စီးဆင်းမှုနှုန်းနှင့် ပိုမိုကောင်းမွန်သော စီးဆင်းနိုင်မှုတို့ကို ပေးစွမ်းနိုင်သည့် အားသာချက်ရှိပါသည်။ ကျွန်ုပ်တို့၏ ဗက်ချူအမ် ဘောလ်ဗီဗွန်များကို ပုံမှန်အားဖြင့် 1x10-6 Torr အတန်းအစားရှိသော ဓာတ်ငွေ့ ယိုစိမ့်မှုနှုန်း အလွန်နည်းပါးစေရန် ဒီဇိုင်းထုတ်ထားပါသည်။ ဤဘောလ်ဗီဗွန်များတွင် KF16-KF50 ဗက်ချူအမ် ဖလေ့န်ချ်များပါရှိပြီး ဗက်ချူအမ်စနစ်သို့ ချိတ်ဆက်ရန်အတွက် ဖြစ်ကာ လက်ဖြင့် သို့မဟုတ် ပန်ကာမောင်းနှင်ခြင်းဖြင့် လည်ပတ်နိုင်ပြီး သံမဏိဖြင့် ပြုလုပ်ထားပါသည်။ အဓိကအားဖြင့် ရော်တေရီ (သို့) စ္စကရိုး ပန့်များပေါ်ရှိ ဘက်ကင်းလိုင်းများတွင် အသုံးပြုပါသည်။
- *ဗားလ်ဗော့ဒီ - sS304/SS316L
- *ဆီးတပ်ပိတ် - PTFE
- *ဗက်ချူအမ် အပ်စ် - 1x10s Torr
- *ပန်ယူမက်တစ် အက်ကွဲတာအတွက် lsO တပ်ဆင်မှုပြားဖြင့် ရွေးချယ်စရာ
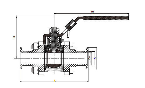
နံပါတ် ၁ လက်ကိုင်တွန်းပို့သည့်လက်ကိုင်ပါ

304 အမျိုးအစားအတွက်ပုံစံ |
အရွယ်အစား |
D/mm |
Dn/မီလီမီတာ |
L/မမ |
H/မီလီမီတာ |
W/မီလီမီတာ |
VFK01H1451K16 |
KF16 |
30 |
15.8 |
93 |
60 |
95 |
VFK01H1451K25 |
KF25 |
40 |
22.1 |
110 |
65 |
125 |
VFK01H1451K40 |
KF40 |
55 |
34.8 |
139 |
85 |
160 |
VFK01H1451K50 |
KF50 |
75 |
47.5 |
147 |
95 |
160 |
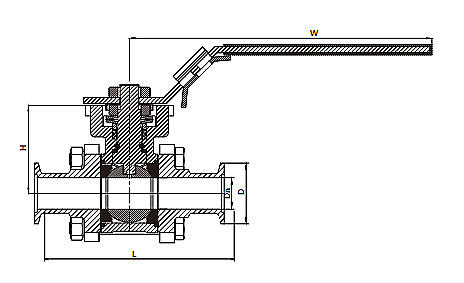
ISO တပ်ဆင်ရန်နေရာနှင့် လက်ကိုင်များပါ

304 အမျိုးအစားအတွက်ပုံစံ |
အရွယ်အစား |
D/mm |
Dn/မီလီမီတာ |
L/မမ |
H/မီလီမီတာ |
W/မီလီမီတာ |
ISO 5211 |
VFK01P2451K16 |
KF16 |
30 |
15.8 |
93 |
30 |
110 |
F04 |
VFK01P2451K25 |
KF25 |
40 |
22.1 |
110 |
45 |
125 |
F04 |
VFK01P2451K40 |
KF40 |
55 |
34.8 |
139 |
64 |
160 |
F05/F07 |
VFK01P2451K50 |
KF50 |
75 |
47.5 |
147 |
74 |
175 |
F05/F07 |
ကျွန်ုပ်တို့အကြောင်း
Wenzhou QiMing Stainless Co., Ltd. ကို ၂၀၁၅ ခုနှစ်တွင် တည်ထောင်ခဲ့ပြီး Wenzhou မြို့တွင် တည်ရှိကာ အစားအသောက်၊ နို့၊ သောက်စရာ၊ အလှကုန်၊ ဝိုင်စက်မှုလုပ်ငန်းများ၊ ဆီမီးကွန်ဒပ်က်တာ၊ LCD၊ နေရောင်ခြည်စွမ်းအင်၊ လီသီယမ်နည်းပညာ၊ ဖိုတိုဗို့လ်တိုက်က် နှင့် အခြားနည်းပညာမြင့်စက်မှုလုပ်ငန်းများအတွက် စတိန်းလက်သံမဏိ ဗာဗ်များနှင့် တပ်ဆင်မှုပစ္စည်းများကို ကျယ်ပြန့်စွာ ပေးဆောင်နေပါသည်။ SS ဗာဗ်များနှင့် တပ်ဆင်မှုပစ္စည်းများကို အဓိကထုတ်လုပ်ပြီး တင်ပို့ပေးနေပါသည်။ ၎င်းတို့မှာ Butterfly Valve, Ball Valve, Check Valve, Angle Valve, Vacuum Valves, Tri Clamp Fittings, Weld Fittings, KF/NW flanges, ISO Flanges နှင့် CF Flanges တို့ဖြစ်ပါသည်။ Mazak CNC, Milling CNC, handheld spectrometer, helium mass spectrometer leak detection, roughness tester နှင့် အခြားပစ္စည်းများလည်း ပိုင်ဆိုင်ထားပါသည်။ ၁၀ နှစ်ကျော် ဖွံ့ဖြိုးတိုးတက်မှုရှိပြီးနောက် QiMing သည် 3A လက်မှတ်နှင့် ISO9001:2008 ကိုရရှိထားပါသည်။ QiMing ၏ အဓိကဈေးကွက်မှာ ဥရောပ၊ အမေရိကန်၊ ကိုရီးယား၊ ဂျပန် စသည်တို့ဖြစ်ပါသည်။
QiMing ဈေးကွက်
ကျွန်ုပ်တို့၏ ထုတ်ကုန်များကို တောင်ကိုရီးယား၊ အမေရိကန်၊ ဗြိတိသျှ၊ အီတလီ၊ ပြင်သစ်၊ နယ်သ်လန်း၊ ဖင်လန်၊ ရုရှား၊ ဘယ်လာရုစ်၊ ထိုင်း၊ ကနေဒါမက္ကဆီကို
ဩစတြေးလျ၊ ဂျာမနီ၊ စပိန်၊ မလေးရှား၊ စင်ကာပူ၊ ဗီယက်နမ်၊ အင်ဒိုနီးရှား၊ အိန္ဒိယ၊ ဖိလစ်ပိုင်၊ ဂျပန်၊ ပါရာဂွေး၊ ဘရာဇီး၊ ချီလီ၊ ပီရူး နှင့် အခြားသောနိုင်ငံများ။

ခိုင်မင်းအဖွဲ့
ကျွန်ုပ်တို့၏ အတွေ့အကြုံရှိ အင်ဂျင်နီယာများသည် ဖောက်သည်တစ်ဦးချင်းစီနှင့် အကောင်းဆုံးဖြစ်နိုင်သော ဖြေရှင်းနည်းများကို ရှာဖွေရန် နီးကပ်စွာ အလုပ်လုပ်ကိုင်ကြသည်။ ကျွန်ုပ်တို့၏ တိကျသော အရည်အသွေးထိန်းချုပ်မှုစနစ်များနှင့် ပေါင်းစပ်ထားသော အဆက်မပြတ် နည်းပညာဆိုင်ရာ ဆန်းသစ်တီထွင်မှုများသည် ကျွန်ုပ်တို့အား ကျန်းမာရေးနှင့်သက်ဆိုင်သော အသုံးချမှုများတွင် အမြင့်ဆုံးစွမ်းဆောင်ရည်နှင့် ထူးချွန်သောတန်ဖိုးကို ပေးအပ်နိုင်စေခဲ့သည်။ သင့်လိုအပ်ချက်များကို ဖြည့်ဆည်းပေးနိုင်ရန် ကျွန်ုပ်တို့၏ ထုတ်ကုန်များ၊ ဝန်ဆောင်မှုများနှင့် ဖြေရှင်းနည်းများ၏ စွမ်းဆောင်ရည်နှင့် တန်ဖိုးကို မြှင့်တင်ရန် ကျွန်ုပ်တို့သည် ကတိပြုထားပါသည်။ သင့်လိုအပ်ချက်များကို ဖြည့်ဆည်းပေးနိုင်ရန် ကျွန်ုပ်တို့၏ ထုတ်ကုန်များ၊ ဝန်ဆောင်မှုများနှင့် ဖြေရှင်းနည်းများ၏ စွမ်းဆောင်ရည်နှင့် တန်ဖိုးကို မြှင့်တင်ရန် ကျွန်ုပ်တို့သည် ကတိပြုထားပါသည်။

ကိရိယာများနှင့်စမ်းသပ်ခြင်း
QiMing တွင် အဆင့်မြင့် CNC စက်များ၊ CNC ဗဟိုဌာနများနှင့် စမ်းသပ်ရေးကိရိယာများ၊ ISO9000 အထောက်အထားရရှိထားပြီး ကုန်ကြမ်းအားလုံးကို ခြေရာခံနိုင်ပါသည်။

လက်မှတ်

ပြပွဲ
ဝန်းရှို Qiming စတီးလက်သံမဏိကုမ္ပဏီလီမိတက်သည် ၂၀၂၃ ခုနှစ် နိုဝင်ဘာတွင် ဂျပန်ဆီမီကွန်ဒပ်က်တာပြပွဲ၊ ၂၀၂၄ ခုနှစ် ဇွန်လတွင် ရှန်ကျင့်ဆီမီကွန်ဒပ်က်တာပြပွဲနှင့် ၂၀၂၄ ခုနှစ် ဇူလိုင်တွင် အမေရိကန်ဆီမီကွန်ဒပ်က်တာပြပွဲတို့တွင် ပါဝင်ခဲ့သည်။ ၂၀၂၄ ခုနှစ် ဒီဇင်ဘာလတွင် ကုမ္ပဏီသည် ဂျပန်ဆီမီကွန်ဒပ်က်တာပြပွဲကို ထပ်မံပါဝင်ခဲ့ပြီး ထိုကာလအတွင်း တရုတ်အိုပ်တိုအီလက်ထရွန်းနစ်ပြပွဲတွင် ပါဝင်ခဲ့သည်။ ၂၀၂၅ ခုနှစ် စက်တင်ဘာတွင် တရုတ်အိုပ်တိုအီလက်ထရွန်းနစ်ပြပွဲ၊ ၂၀၂၅ ခုနှစ် အောက်တိုဘာတွင် အမေရိကန်ဆီမီကွန်ဒပ်က်တာပြပွဲနှင့် ၂၀၂၅ ခုနှစ် နိုဝင်ဘာတွင် ဂျပန်ဆီမီကွန်ဒပ်က်တာပြပွဲတို့တွင် ပါဝင်မည်ဖြစ်သည်။

မေးလေ့ရှိသောမေးခွန်းများ
မေး - ကျွန်ုပ်သည် သင့်ကို အဘယ်ကြောင့် ရွေးချယ်သင့်ပါသနည်း။
Wenzhou QiMing Stainless Co., Ltd သည် ကျန်းမာရေးဆိုင်ရာ ၀ါလုံများ၊ တွဲဆက်ပိုင်းများ၊ တဲ့အိုးပိုင်းများနှင့် ပန့်များထုတ်လုပ်ရာတွင် ပါဝင်ပါသည်။
ထုတ်လုပ်မှုစွမ်းရည်၊ ထိရောက်သောစီမံခန့်ခွဲမှု၊ တိကျသော အချိန်ဇယား၊ အချိန်မီပို့ဆောင်မှုများနှင့် ပြဿနာဖြေရှင်းမှုတို့တွင် ကျွမ်းကျင်သော ၁၅ နှစ်ကျော်အတွ experience အတွေ့အကြုံရှိပါသည်။
ရောင်းချပြီးနောက် အကြံပြုချက်နှုန်း
မေး - မှာယူမည့်အရာမှာ နမူနာများကို အခမဲ့ရယူနိုင်ပါသလား။
ဟုတ်ပါတယ်၊ ကျွန်တော်တို့ကုမ္ပဏီမှ သင့်အား အရည်အသွေးစမ်းသပ်ရန်အတွက် အခမဲ့နမူနာများကို ပို့ဆောင်ပေးရန် ဝမ်းသာပါမည်။ သို့သော် ကုန်စည်ပို့ဆောင်ရေးကုန်ကျစရိတ်ကို ဝယ်သူက ပေးဆောင်ရမည်ဖြစ်ပါသည်။
သူတို့ကို တည်ဆောက်ရန် လိုအပ်သည်။
Q: MOQ ဘယ်လောက်လဲ?
ထုတ်ကုန်အများစုသည် ပြည့်စုံစွာရှိပါသည်၊ ထို့ကြောင့် အနည်းဆုံးအားဖြင့် တစ်ခုကို မှာယူမှုအရေအတွက်အဖြစ်လက်ခံပါသည်။
မေး - သင့်ကုမ္ပဏီတွင် တင်ပို့ခွင့်လိုင်စင် ရှိပါသလား။
ဟုတ်ပါတယ်၊ ကျွန်တော်တို့မှာ ၄ နှစ်ကျော် တင်ပို့ရောင်းချမှုအတွ experience် အတွေ့အကြုံရှိပါတယ်၊ FOB၊ C&F၊ CIF၊ DDU နှင့် DDP (ရုရှားသာ) တို့ကိုလုပ်ဆောင်ပေးနိုင်ပါတယ်။
မေး- ငွေပေးချေမှုကာလကဘာလဲ။
သေးငယ်တဲ့စမ်းသပ်မှုမှာယူမှုများအတွက်၊ ကျွန်တော်တို့သည် Paypal၊ Western Union၊ T/T နှင့် အကျိုးဆောင်ကဒ်ကိုလက်ခံပါသည်။
အများအားဖြင့်မှာယူမှုများအတွက်၊ ကျွန်တော်တို့သည် T/T နှင့် L/C ကိုလက်ခံပါသည်။
မေး - ပို့ဆောင်စဉ်အတွင်း ပျက်စီးမှုများကို သင်သည် မည်သို့ လျှော့ချမည်နည်း။
စံသတ်မှတ်ချက်- အများအားဖြင့်မှာယူမှုများကို ကာဗွန်ဘူးအများအပြားဖြင့်ထုပ်ပိုးပြီး သစ်သားသေတ္တာများတွင်ထည့်ပါမည်။
ရရှိနိုင်သောလိုအပ်ချက်-ထုတ်ကုန်တစ်ခုချင်းစီအတွက် ပူးပေါင်းထုပ်ပိုးခြင်း၊ ကလန့်ခ်ချိတ်ဆက်ထားသောထုတ်ကုန်များအတွက် ပလပ်စတစ်မျက်နှာဖုံးများ။
မေး - ပို့ဆောင်မှုနည်းလမ်းကို သင်သည် မည်သို့ရွေးချယ်မည်နည်း။
အခြေခံအားဖြင့်၊ ကျွန်ုပ်တို့သည် မှာယူမှုပမာဏ၊ ပို့ဆောင်ရေးအချိန်၊ စရိတ်နှင့် စ customsးကောက်မူဝါဒတို့ကိုအခြေခံ၍ သယ်ယူပို့ဆောင်ရေးနည်းလမ်းများကိုရွေးချယ်ပါမည်။
အားသာချက်များနှင့် အားနည်းချက်များပါသော ရွေးချယ်စရာရွေးချယ်မှုအချို့ကို ဖောက်သည်များအား ပေးပြီး ၎င်းတို့ကိုယ်တိုင် ဆုံးဖြတ်စေရန်။
